宅中宅|House in a House

農安宅 Apartment NA

Location: Taipei, Taiwan
Type: Interior
Status:2011
Size:70 m²

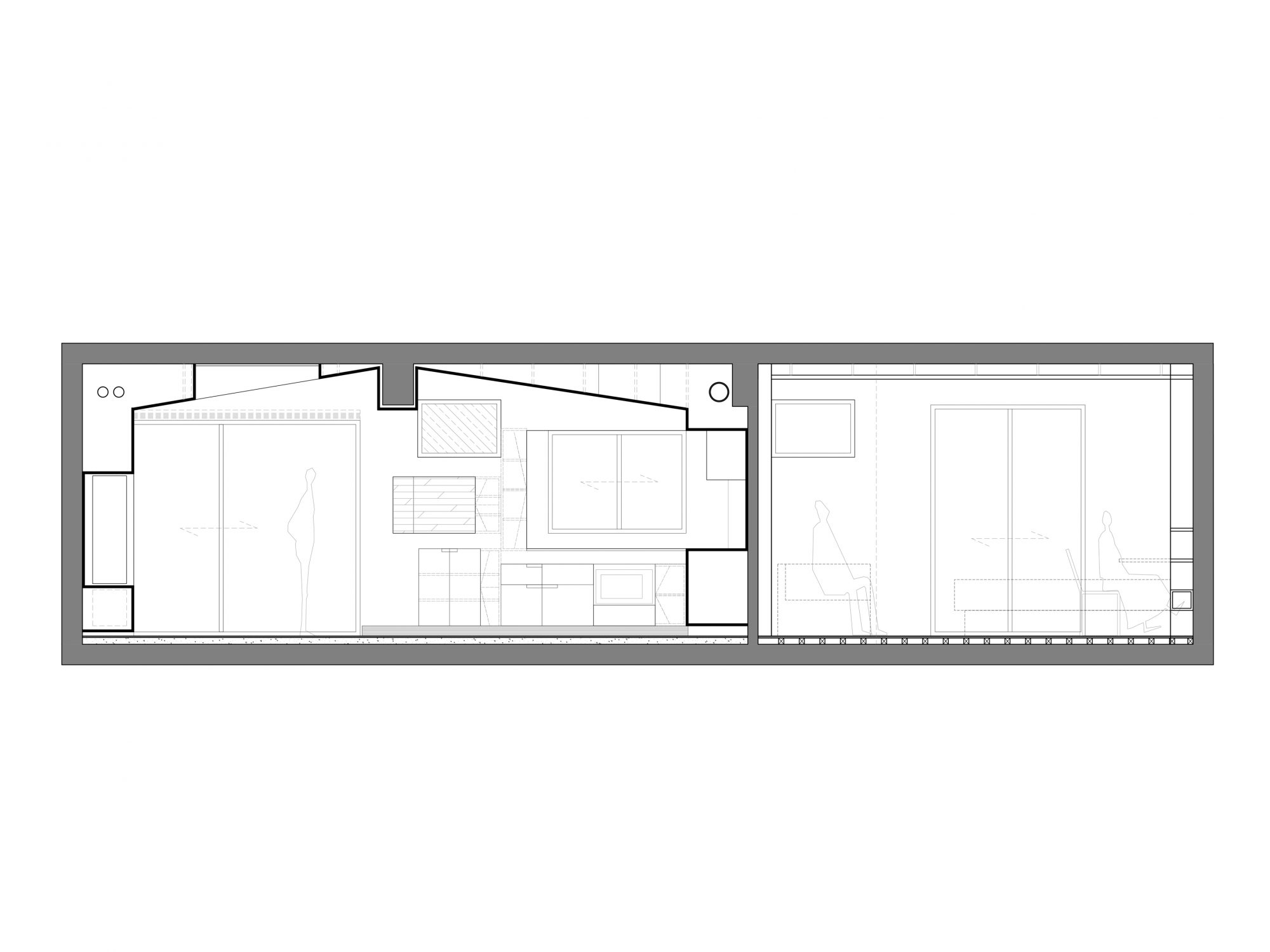
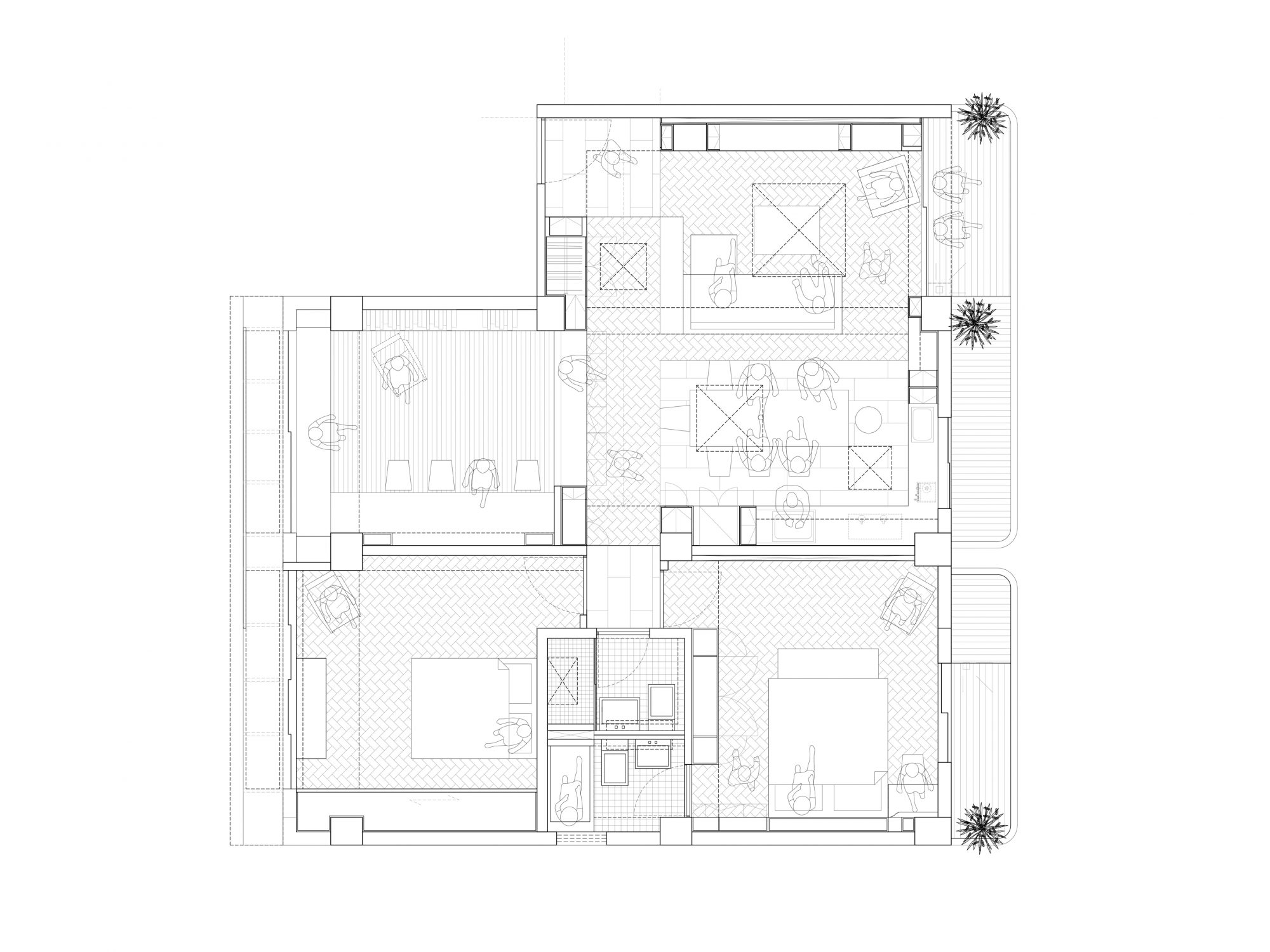
本案以家形發展成為住家內的公共虛空間:厚櫃體提供機能並加強隔音,內立面開口則提供不同的窗景。

This home project explores public void space formed by house shape enclosure. Thick storage walls integrate programs and insulation, while the openings on the wall present interesting topic views.