大園小住宅群House Cluster DY
Location: Taoyuan, Taiwan
Type: Residential
Status: 2021-
Size: 930 m²
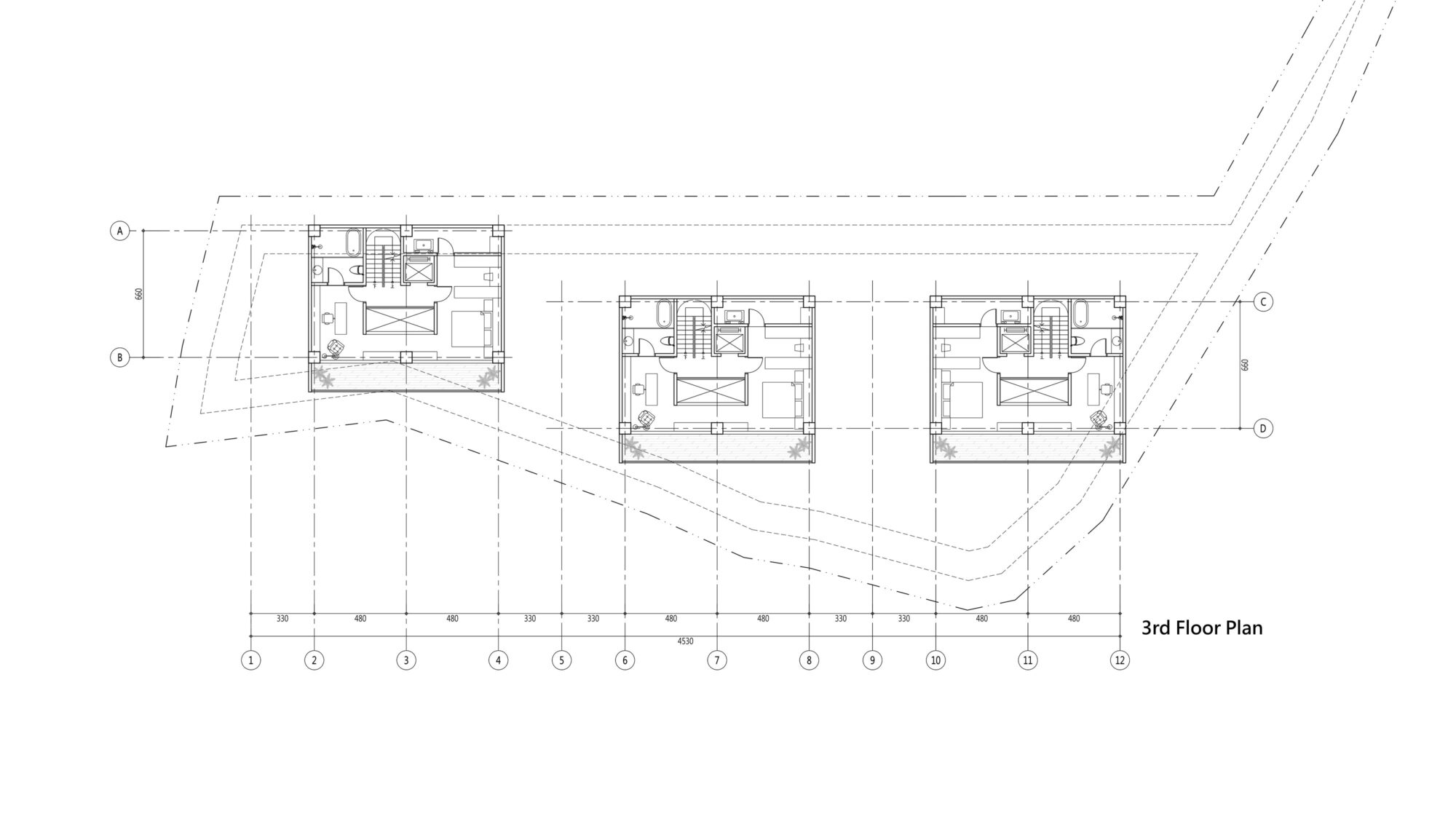
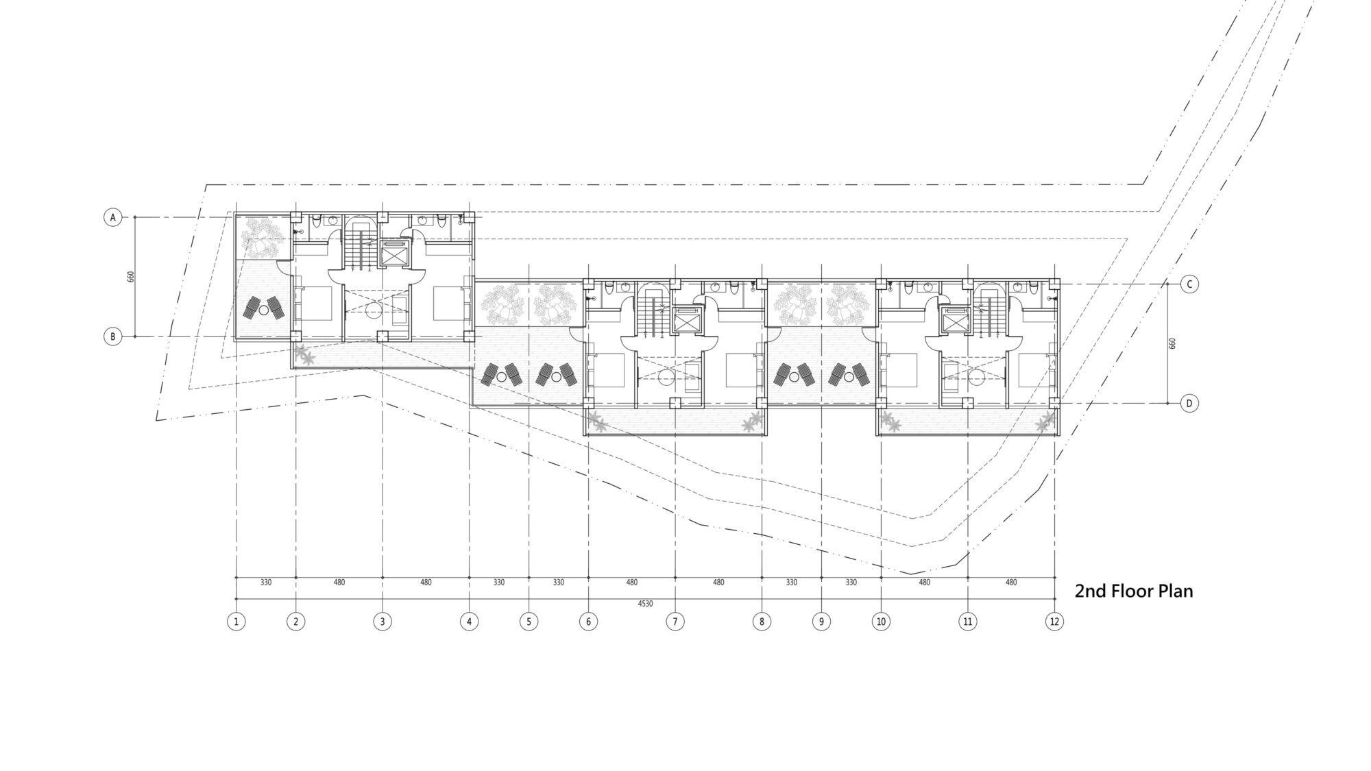
本案探討了三代同屋住宅的生活可能。45M長的共同生活基座提供了長輩的住房與家族共同生活空間,上部略為不同的三個建築量體則為三兄弟的個別生活表達。
The project explores the building type of three generations under one architecture. While a 45-meter long podium massing across the site accommodates space for elder generation and collective living, three upper massing express different lifestyle of three brothers.

