大安十口人辦公室一期 Daan MiAO Office Phase I
Location: Taipei, Taiwan
Type: Interior
Status:2016
Size:90 m²
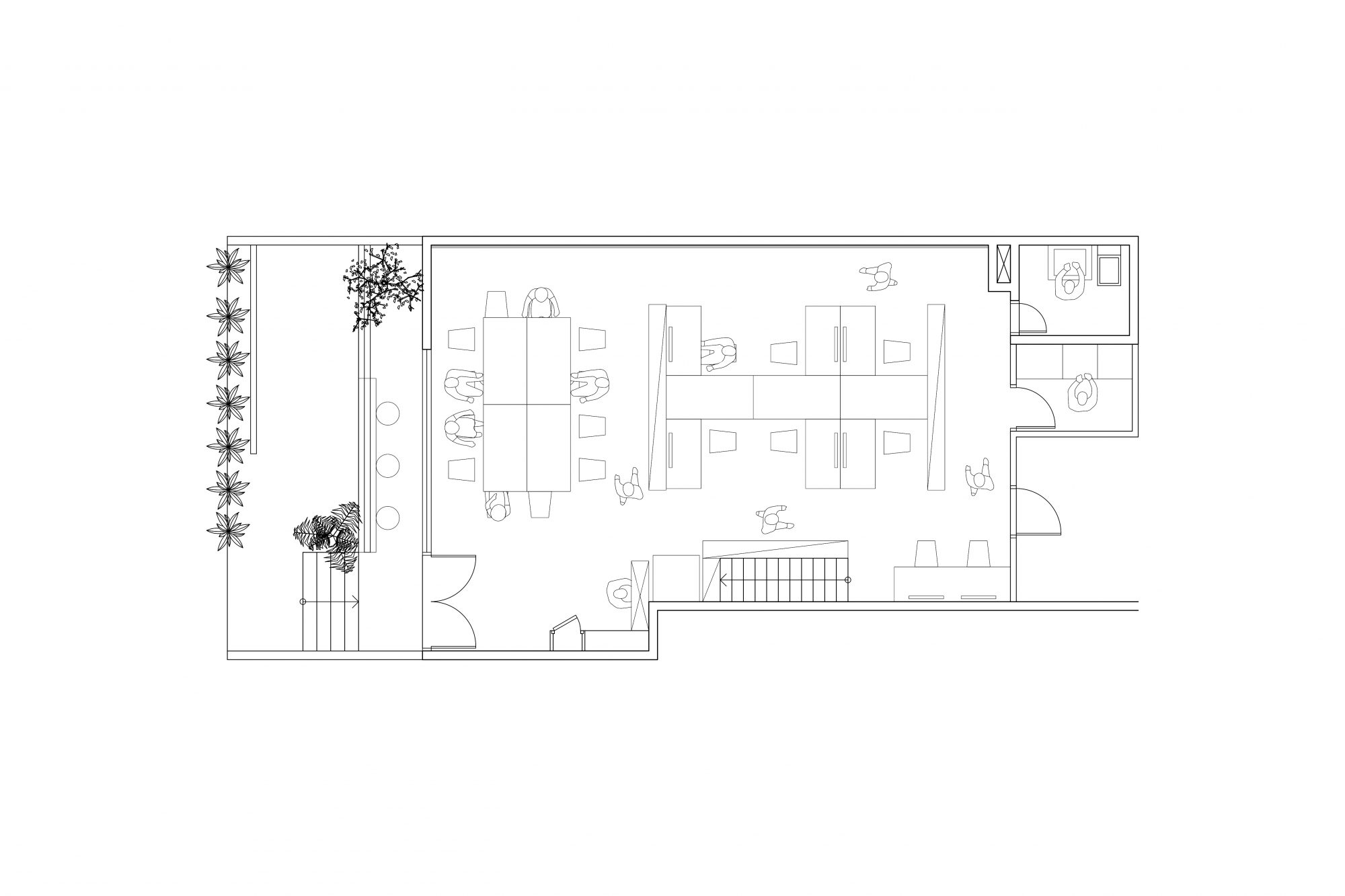
辦公室空間提供了一種開放討論的工作氛圍: 自由變更的磁鐵牆、黑板漆的服務核與不OA的OA工作區。
The open office space encourages any discussion by the design of free-to-change magnetic wall, blackboard-wall service core and OA furniture not look so much like OA.

